Proposed Apartments Next to Scott Pierson Trail at Orchard Street

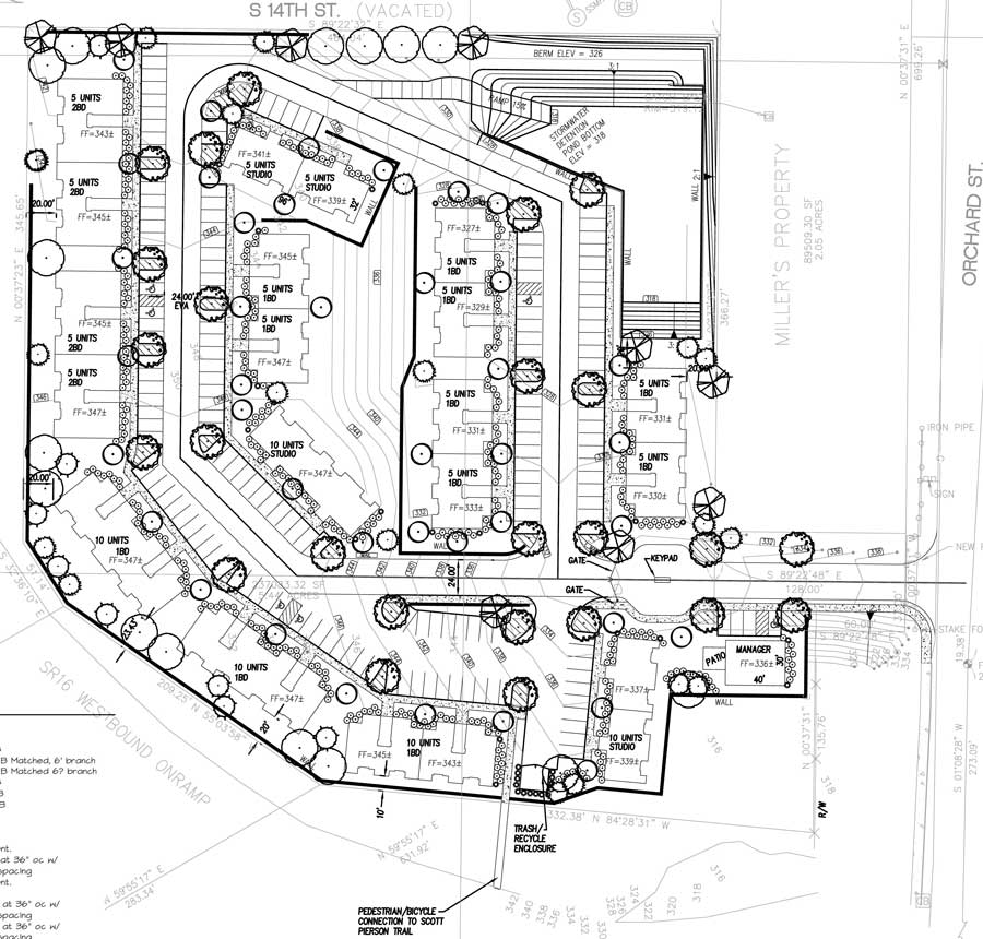
A developer has applied for permits to build a 120-unit apartment complex between South Orchard Street and the Scott Pierson Trail - just north of the 19th Street Westbound on ramp to SR-16 ramps. The proposed 13-building project requires a rezoning of the area from "R-2" Single-Family Dwelling District to "R-4L" Low Density Mulitiple-Family Dwelling, as well as environmental and WSDOT traffic impact approvals for the 5.44-acre site.

There's a lot of pretty dense environmental information attached, but according to the public hearing notice the City has "preliminarily determined adverse environmental impacts are unlikely," and anticipates issuing a Determination of Non-significance. The developers would like to begin construction next spring, pending the various needed approvals.
Interested parties can comment at a July 17 public hearing, or submit written comments. Learn more in the extensive public hearing notice (pdf).
So, any comment?
Filed under: Neighborhoods, Developments, West End, Central Tacoma
3 comments
I Ivy May 6, 2014
J Jake May 7, 2014
N nwcolorist May 8, 2014